Terreno en Muro, con 14463 m², urbanizable
Terreno rústico en Muro con licencia concedida y lista para construir vivienda unifamiliar.
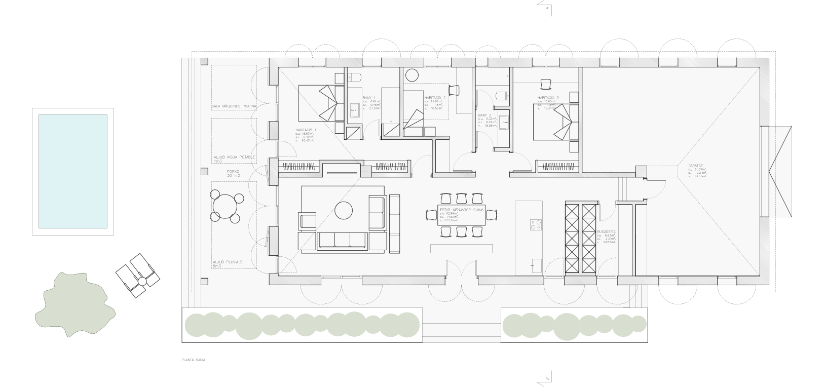
Terreno situado en Muro, a pocos minutos de las mejores playas de Can Picafort y Playa de Muro, con proyecto básico y de ejecución totalmente aprobados, lo que permite iniciar la construcción de la vivienda de forma inmediata, sin esperas ni trámites adicionales.
El terreno cuenta con una superficie de 14.463 m² según Catastro, está completamente cerrado con pared seca y se clasifica como suelo rústico general (SRG). Dispone de posibilidad de conexión a la red eléctrica.
La finca ofrece agradables vistas a la montaña y al pueblo, se encuentra en una zona tranquila y tiene fácil acceso por carretera asfaltada, lo que la convierte en una opción ideal tanto como residencia habitual como vivienda vacacional.
Si desea más información o concertar una visita, no dude en ponerse en contacto con nosotros.
